service
E-コンペとは
estate
クリニック向け物件
gallery
内装建築事例
event
セミナー・イベント
blog
内装ブログ
enisys
エニシスについて
contact
お問合せ
TOP
E-コンペとは
クリニック向け物件紹介
内装建築事例
セミナー・イベント
内装ブログ
エニシスについて
お問合せ
物件詳細・お問合せ
TOP
クリニック向け物件
物件問合せ
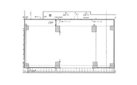
市川市 駅近・マンション下駄
物件ID:058823
住所
千葉県市川市
広さ
約61坪
賃料等
約1,000,000円(税別)
保証金
6ヶ月
共益費
賃料に含む
駐車場
6台
契約期間
2年
立地
ビル1F,駅近
物件一覧に戻る
この物件のお問合せはこちら
お問合せ物件
ID:058823 市川市 駅近・マンション下駄
お名前
ふりがな
携帯電話番号
メールアドレス
診療科目
ご自宅住所(都道府県)
お問合せ内容