service
E-コンペとは
estate
クリニック向け物件
gallery
内装建築事例
event
セミナー・イベント
blog
内装ブログ
enisys
エニシスについて
contact
お問合せ
TOP
E-コンペとは
クリニック向け物件紹介
内装建築事例
セミナー・イベント
内装ブログ
エニシスについて
お問合せ
物件詳細・お問合せ
TOP
クリニック向け物件
物件問合せ
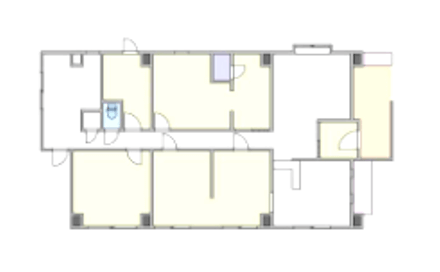
千葉市 駅近・スーパー動線
物件ID:058817
住所
千葉県千葉市
広さ
約34坪
賃料等
約370,000円
保証金
3ヶ月
共益費
要確認
駐車場
要確認
契約期間
3年
立地
ビル1F,駅近
物件一覧に戻る
この物件のお問合せはこちら
お問合せ物件
ID:058817 千葉市 駅近・スーパー動線
お名前
ふりがな
携帯電話番号
メールアドレス
診療科目
ご自宅住所(都道府県)
お問合せ内容