service
E-コンペとは
estate
クリニック向け物件
gallery
内装建築事例
event
セミナー・イベント
blog
内装ブログ
enisys
エニシスについて
contact
お問合せ
TOP
E-コンペとは
クリニック向け物件紹介
内装建築事例
セミナー・イベント
内装ブログ
エニシスについて
お問合せ
物件詳細・お問合せ
TOP
クリニック向け物件
物件問合せ
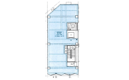
渋谷区 駅近・新築ビル計画
物件ID:058781
住所
東京都渋谷区
広さ
約30坪
賃料等
約1,170,000円(税別)
保証金
12ヶ月
共益費
要確認
駐車場
要確認
契約期間
5年~
立地
ビル2F以上,駅近
物件一覧に戻る
この物件のお問合せはこちら
お問合せ物件
ID:058781 渋谷区 駅近・新築ビル計画
お名前
ふりがな
携帯電話番号
メールアドレス
診療科目
ご自宅住所(都道府県)
お問合せ内容