service
E-コンペとは
estate
クリニック向け物件
gallery
内装建築事例
event
セミナー・イベント
blog
内装ブログ
enisys
エニシスについて
contact
お問合せ
TOP
E-コンペとは
クリニック向け物件紹介
内装建築事例
セミナー・イベント
内装ブログ
エニシスについて
お問合せ
物件詳細・お問合せ
TOP
クリニック向け物件
物件問合せ
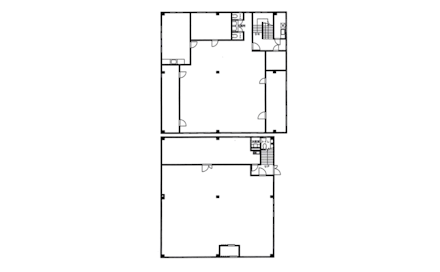
町田市 ロードサイド・一括貸し
物件ID:058774
住所
東京都町田市
広さ
約170坪
賃料等
約580,000円(税別)
保証金
約3,600,000円
共益費
要確認
駐車場
8台以上
契約期間
10年
立地
ビル1F,ビル2F以上,ロードサイド
物件一覧に戻る
この物件のお問合せはこちら
お問合せ物件
ID:058774 町田市 ロードサイド・一括貸し
お名前
ふりがな
携帯電話番号
メールアドレス
診療科目
ご自宅住所(都道府県)
お問合せ内容