service
E-コンペとは
estate
クリニック向け物件
gallery
内装建築事例
event
セミナー・イベント
blog
内装ブログ
enisys
エニシスについて
contact
お問合せ
TOP
E-コンペとは
クリニック向け物件紹介
内装建築事例
セミナー・イベント
内装ブログ
エニシスについて
お問合せ
物件詳細・お問合せ
TOP
クリニック向け物件
物件問合せ
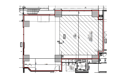
大田区 アーケード商店街・新築
物件ID:057174
住所
東京都大田区
広さ
約40坪(他区画あり)
賃料等
約1,240,000円
保証金
要確認
共益費
要確認
駐車場
なし
契約期間
要確認
立地
ビル1F,駅近,商店街
物件一覧に戻る
この物件のお問合せはこちら
お問合せ物件
ID:057174 大田区 アーケード商店街・新築
お名前
ふりがな
携帯電話番号
メールアドレス
診療科目
ご自宅住所(都道府県)
お問合せ内容